江苏翔盛环保科技有限公司
服务热线:13962786756
QQ:645768680
传真:0513-88482561
E-mail:13962786756@163.com
当前位置江苏翔盛环保科技有限公司 >> 挡板门 >> 防爆门

.jpg)
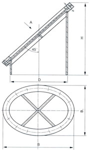
斜面防爆门 园形防爆门 重力防爆门
防爆门分膜板式和重力式两种类型。 膜板式防爆门又分圆形防爆门、斜面防爆门、圆形带活动短管防爆门、400×600带活动短管防爆门,通常布置于热风送粉管道上,斜面防爆门通常布置于户外。带活动短管防爆门布置于煤粉仓系统。重力防爆门有水平布置和垂直布置两种,主要用于烟道。防爆门的作用是当煤粉受热膨胀时,造成系统压力过高,气流冲破膜板或顶开重力盖而泄压,达到保护设备和管道的目的。该系列防爆门皆按照74DD标准(D-LD2000标准)制作。
园形防爆门

|
名 称
|
规 格
|
图 号
|
|
水平重力防爆门
|
Dg 450
|
DD4331
|
|
垂直重力防爆门
|
Dg 450
|
DD4332
|
|
带活动短管防爆门
|
400*600
|
DD4341
|
|
园形带短管防爆门
|
Dg 300
|
DD 4311
|
|
园形带短管防爆门
|
Dg 400
|
DD 4312
|
|
园形带短管防爆门
|
Dg 500
|
DD 4313
|
|
园形带短管防爆门
|
Dg 600
|
DD 4314
|
|
园形带短管防爆门
|
Dg 700
|
DD 4315
|
|
园形带短管防爆门
|
Dg 800
|
DD 4316
|
|
园形带短管防爆门
|
Dg 900
|
DD 4317
|
|
园形带短管防爆门
|
Dg 1000
|
DD 4318
|